
1 The Seal of the Warwick and Birmingham Canal Navigation Company 1793

2 The Seal of the Warwick and Birmingham Canal Navigation Company 1793 and the signature of Thomas Russell, the Company Chairman.

3 Part of the origianl 1792 Survey of the Warwick and Birmingham Canal

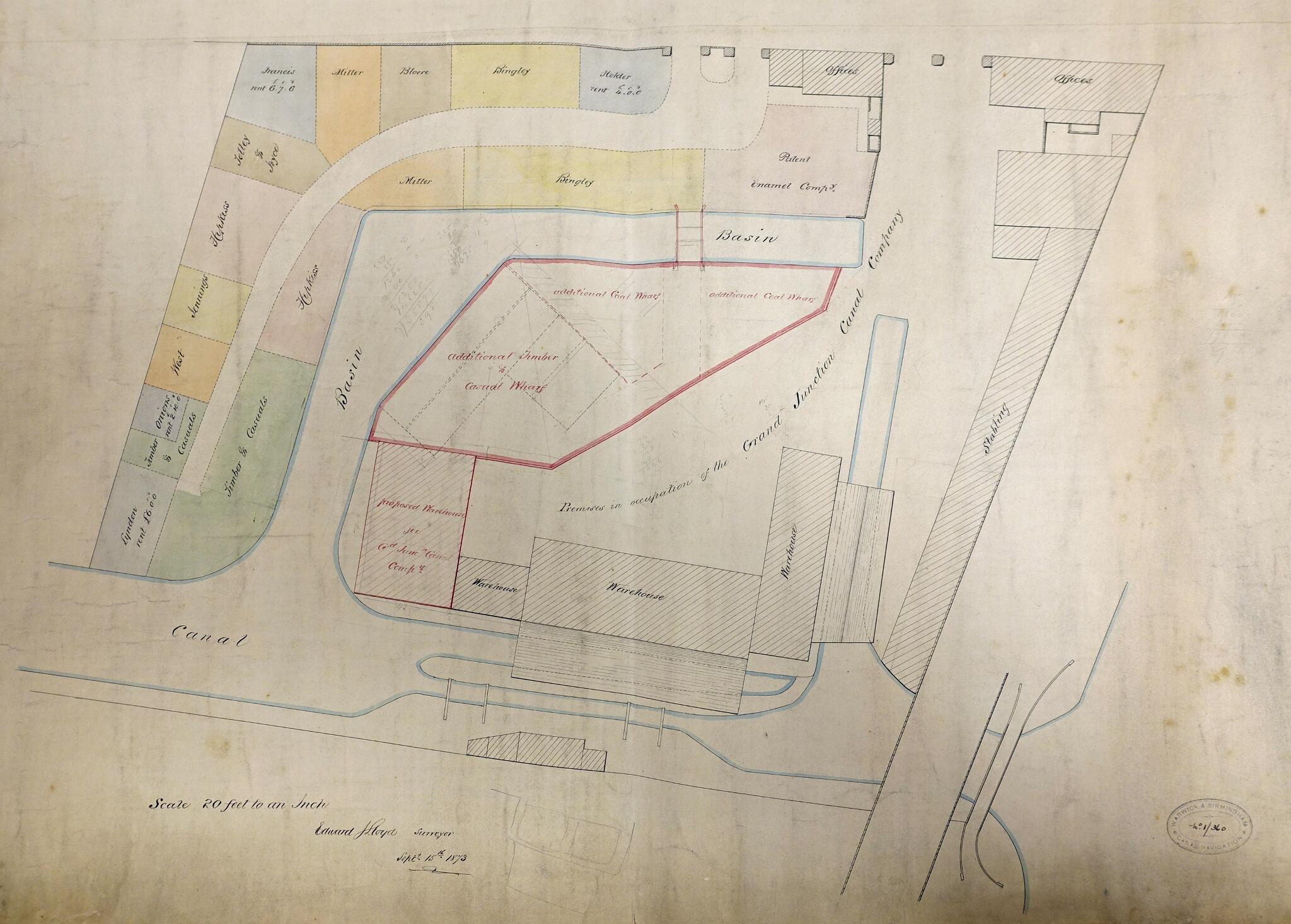
4 Warwick Basin at the Northern end of the canal in 1873

5 Warwick Wharf: 1.Lock house, 2. Warehouse 1810, 3.Warehouse 1812, 4.BCN Warehouse, 5.Grand Junction Carrying Co. warehouse, 6. Stables, 7. Warwick & Birmingham Co. Offices, 8. Coal and timmber wharf

6 Extract from the Company minutes regarding the contract for the Rowington Cutting and Embankment. Thomas Pinkerton had attempted to bribe Wm Felkin, the Company Engineer

7 Cover of notebook belonging to one of the land valuers for the canal

8 Extract from the land valuer's notebook recording ownership of the various plts of land that the canal would pass through

9 Extract from the land valuer's notebook showing that ownership of land was often far from simple

10 Extract from the land valuer's notebook recording compensation paid to landowners for damage caused during canal cutting

11 Extract from the land valuer's notebook recording dealings with Robert LeBlanc who owned land in Rowington and was playing hard to get in spite of being a shareholder.

12 Letter from the canal company in 1925 to Rev Arthur Pritchard in Rowington. Pritchard was concerned about the Chancel Repair Liability when land around the canal was sold.

13 Minutes of the first General Assembly meeting of the canal company on 17th June 1793

14 Minutes of the first meeting of the canal company on 25th June 1793

15 Olton Reservoir built in 1798 to supply water to the summit level of the canal

16 The end of the Warwick and Birmingham Canal at the junction with the Digbeth Branch

17 Stop Lock at the start of the Warwick and Birmingham Canal

18 Stop Lock and Warwick Basin at the start of the Warwick and Birmingham Canal

19 Warwick Basin

20 Warwick Basin